C/ EL RIVERO, 1.
LIMPIAS (CANTABRIA)
PROYECTO BÁSICO, DE EJECUCIÓN Y DIRECCIÓN DE OBRA. 2007-2014.
Lagar y entrada principal
La planta baja de la casa estuvo destinada a entrada de carruajes, cuadras para caballos y un antiguo lagar de sidra. En la actualidad, constituye el acceso principal a la vivienda en las plantas superiores. El suelo de tierra en cuadras y lagar, supone un aporte permanente de humedad al interior de la edificación, acentuado por la existencia de aguas subterráneas que descienden por la ladera contra la que se apoya la casa, y por estar por debajo del nivel freático.
Antes

Después

Balcones fachada
La casa linda sin retranqueo con lo que en su día fue la calle principal del pueblo y después pasó a ser carretera nacional. Camiones con exceso de altura destruyeron los balcones del primer piso. La construcción de una circunvalación y la reforma de la calle creando una distancia de protección, posibilitó la reconstrucción de los balcones. Se utilizaron las piedras recuperadas, pegando los fragmentos fracturados y rehaciendo las barandillas para lograr una reproducción exácta del original.
| Antes | Después |


Tejado
El antiguo sistema constructivo de la cubierta sin impermeabilización ni aislamiento, dificultaba el mantenimiento y hacía inhabitable el espacio inmediatamente inferior.
Se decide introducir un panel sandwich y un sistema de onduline bajo teja, conservando la antigua estructura de madera y las tejas existentes, reemplazando únicamente los elementos dañados.

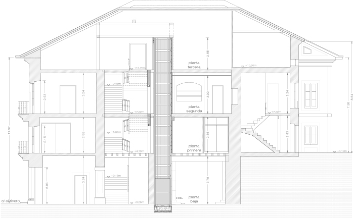
Ascensor
La propiedad solicita la instalación de un elevador que conecte todos los niveles y sea accesible para personas de movilidad reducida.
La elección del lugar debía conectar todas las plantas y tener salida a la escalera principal para mantener la posibilidad de independencia de cada piso.
Debido al tipo de construcción de la casa, los muros de carga de la estructura principal disminuyen su espesor a medida que ascienden, lo que reducía el espacio disponible en la planta inferior. Se encuentra además, que los elementos estructurales de madera no coinciden al superponerlos, debido también a reformas llevadas a cabo a lo largo del tiempo. En el emplazamiento más adecuado para el funcionamiento actual de la vivienda y con las máximas dimensiones resultantes, se consiguió resolver la instalación cumpliendo todas los requisitos iniciales y sin modificar la estructura existente.


Sección general por hueco de ascensor.

Planta general.


REHABILITACIÓN DE CASA-PALACIO
Situacion
Propiedad
Programa
Arquitectos
Estructuras
Constructora
Instalación de Ascensor
Superficie
Fechas
Balcones: 2010.
Ascensor: Proyecto 2013. Obra 2014.